Technische data
Titel
Novoli Firenze
Omschrijving
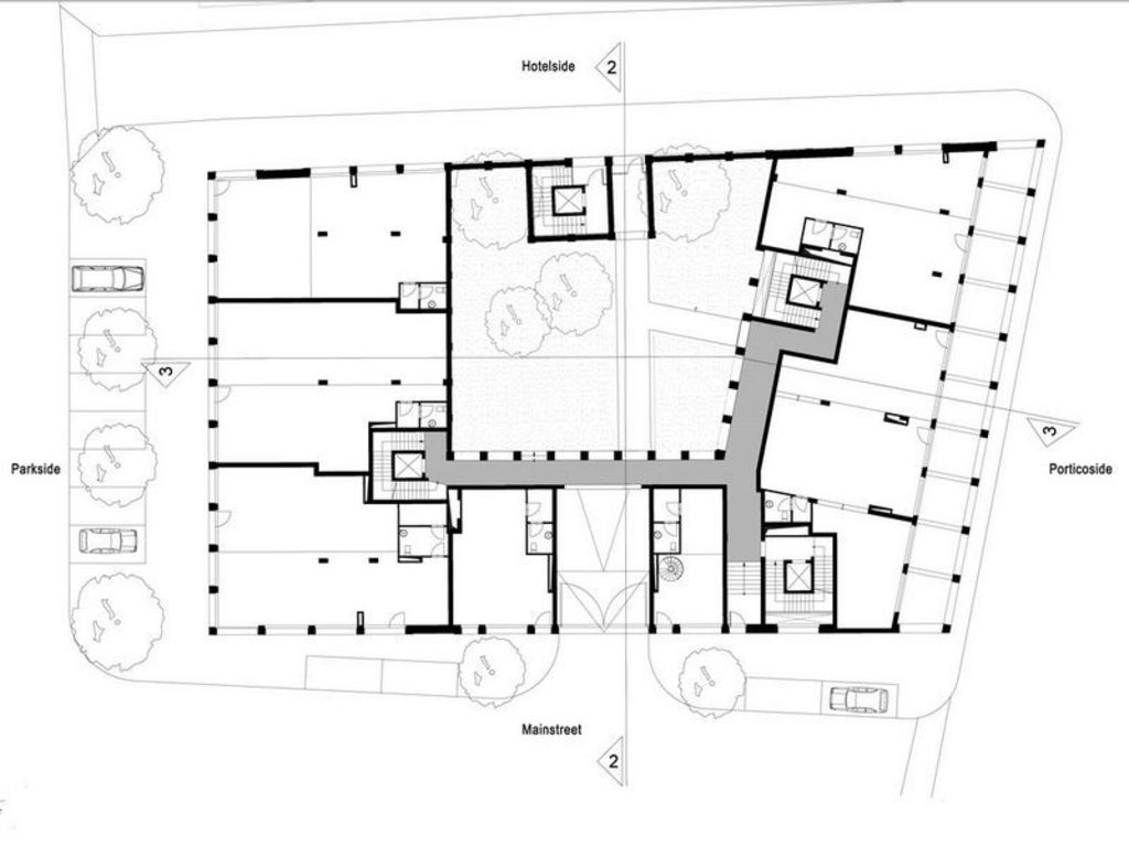
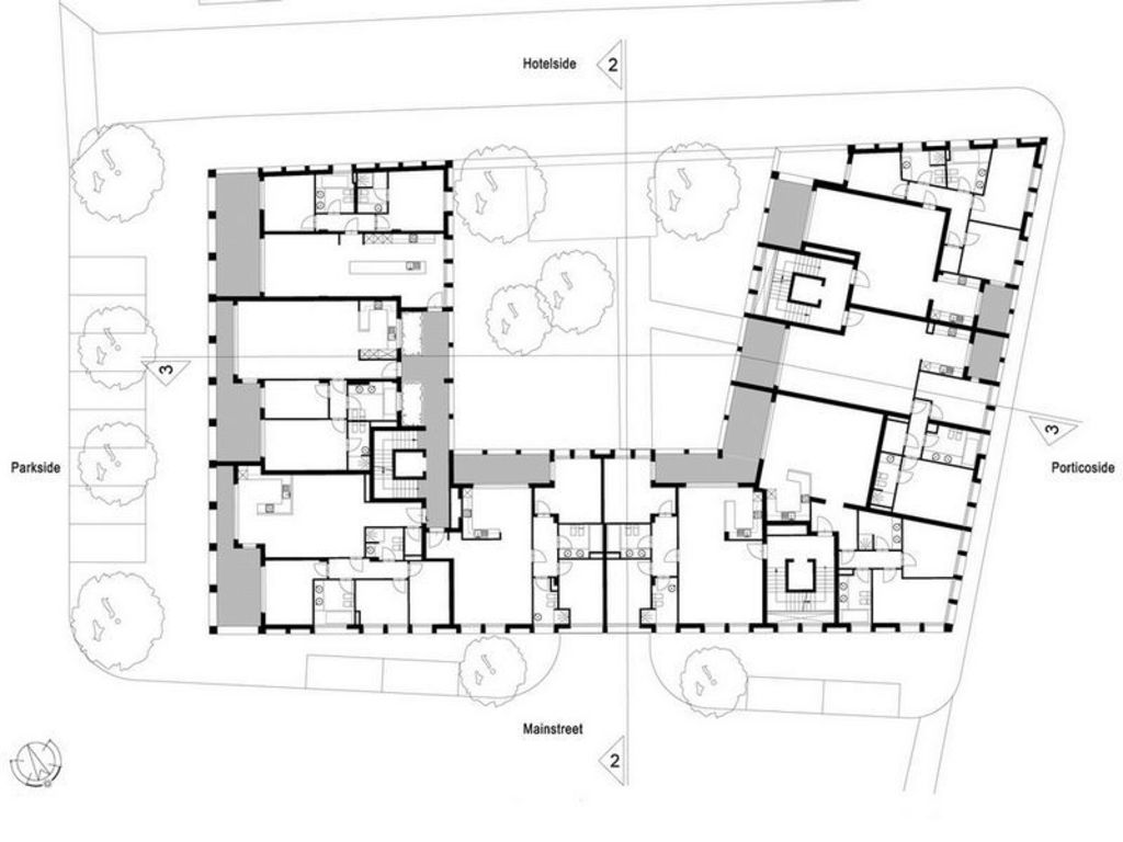
Deelproject van de herwaarderingsoperatie Novoli, de voormalige Fiat-terreinen.
Locatie
Firenze , Italiƫ
Opdrachtgever
Immobiliare Novoli SPA
Soort
Privaat
Soort
Nieuwbouw
Type
Woonproject
Bruto oppervlakte
6.670,00 m²
Startjaar ontwerp
2006
Eindjaar werken
2014
Fase
Voltooid